כתובת:

המשי 19, גני תקווה

טלפון:

5649*

שעות פעילות:

א'-ה' 9:00-17:00 ימי ו' 9:00-13:00

גני תקווה

כתובת: המשי 19, גני תקווה

טלפון: 5649*

שעות פעילות: א'-ה' 9:00-17:00 ימי ו' 9:00-13:00

הרשו לעצמכם ליהנות משילוב של נוחות ונגישות לחינוך, קהילה ופנאי בפרויקט המגורים החדשני בדרך המשי, גני תקווה.

במגדל המגורים המתנשא לגובה של 15 קומות, יש מגוון דירות שיתאימו לכולם, החל מדירות 3 חדרים לזוגות צעירים ועד דירות 6 חדרים למשפחות עם ילדים. קבוצת שבירו שמה דגש על ניצול יעיל של החללים הבנויים על מנת ליצור סביבת מגורים אידיאלית לצד עיצוב מרהיב ושמירה על קיימות ואיכות הסביבה.

מפרט טכני

שטחים משותפים

  • לובי יוקרתי בחלל גבוה מעוצב מרוהט עי המעצב עודד חלף.
  • 3 מעליות מפוארות לכל בניין , כולל מסך דיגטלי במעלית אלונקה.
  • חדר כושר מאובזר וממוזג הכולל מטבחון ושירותים
  • פיתוח וגינון ברמה גבוהה כולל מערכת השקיה ממוחשבת
  • שוט אשפה קומתי מקומה 1 ועד קומה 14
  • עמוד אינטרקום דקורטיבי בכניסה הראשית
  • מחסן לכל דירה
  • חיפויי הבניין משולב באבן טבעית
  • מחסום כניסה חשמלי בכניסה לחניון
  • גנראטור בשעת חירום

בדירה

  • הכנה למערכת חשמל בית חכם
  • מערכת מיזוג אוויר מסוג VRF כולל הנמכות גבס
  • תקרות גבוהות כ3.00 מטר
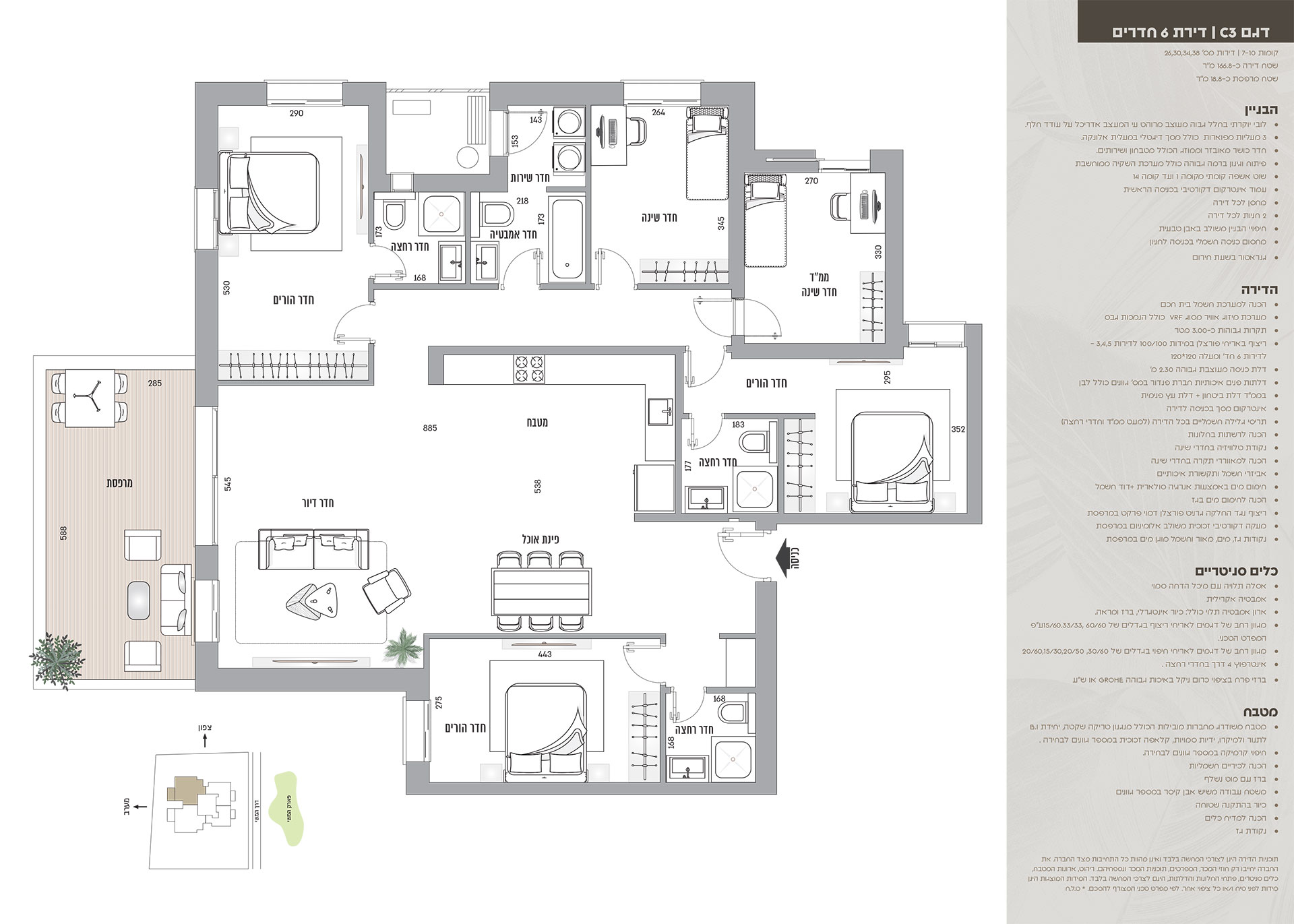
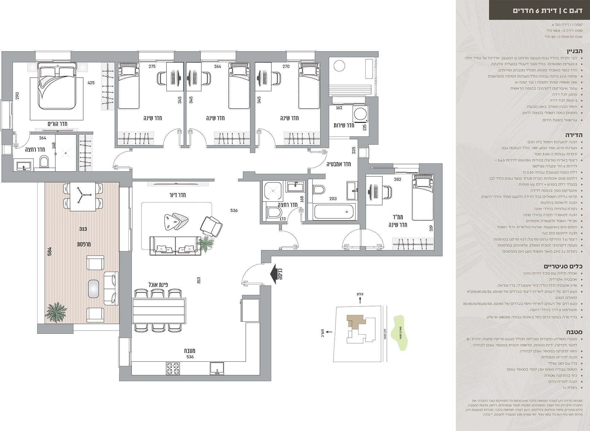
  • ריצוף באריחי פורצלן במידות 100/100 לדירות 3,4,5 חדרים. לדירות 6 חדרים ומעלה 120*120
  • דלת כניסה מעוצבת גבוהה 2.30 מ
  • דלתות פנים איכותיות במספר גוונים כולל לבן
  • בממ"ד דלת ביטחון + דלת עץ פנימית
  • אינטרקום מסך בכניסה לדירה
  • תריסי גלילה חשמליים בכל הדירה (למעט ממ"ד וחדרי רחצה)
  • הכנה לרשתות בחלונות
  • נקודת טלוויזיה בחדרי שינה
  • הכנה למאווררי תקרה בחדר שינה
  • אביזרי חשמל ותקשורת איכותיים
  • חימום מים: באמצעות אנרגיה סולארית  + דוד חשמל
  • הכנה לחימום מים בגז.
  • ריצוף נגד החלקה גרניט פורצלן דמוי פרקט במרפסת
  • מעקב דקורטיבי זכוכית משולב אלומיניום במרפסת

מטבח

  • מטבח משודרג הכולל מנגנון טריקה שקטה, יחידת I לתנור ולמיקרו, ידיות סמויות, קלאפה זכוכית במספר גוונים לבחירה .
  • חיפוי קרמיקה במספר גוונים לבחירה.
  • הכנה לכיריים חשמליות
  • ברז עם מוט נשלף
  • משטח עבודה משיש אבן קיסר במספר גוונים
  • כיור בהתקנה שטוחה
  • הכנה למדיח כלים
  • נקודת גז

מרפסת שמש

  • ריצוף נגד החלקה גרניט פורצלן דמוי פרקט
  • מעקה דקורטיבי זכוכית משולב אלומיניום
  • נקודת טלוויזיה
  • נקודת גז
  • נקודת מים
  • נקודת מאור
  • נקודת חשמל מוגן מים

 

דירות פנטהאוז– דירות מס 51+52

  • חלל כפול באזור אירוח
  • מטבח פרימיום
  • משטח אבן שיש מיוחד פרימיום
  • הכנה לבריכה
  • הכנה למטבחון חוץ
  • ריצוף באריחי פורצלן במידות 120/120 , 60/120
  • 2 יחידות מיזוג אויר בחלוקה לציבורי וחדרים

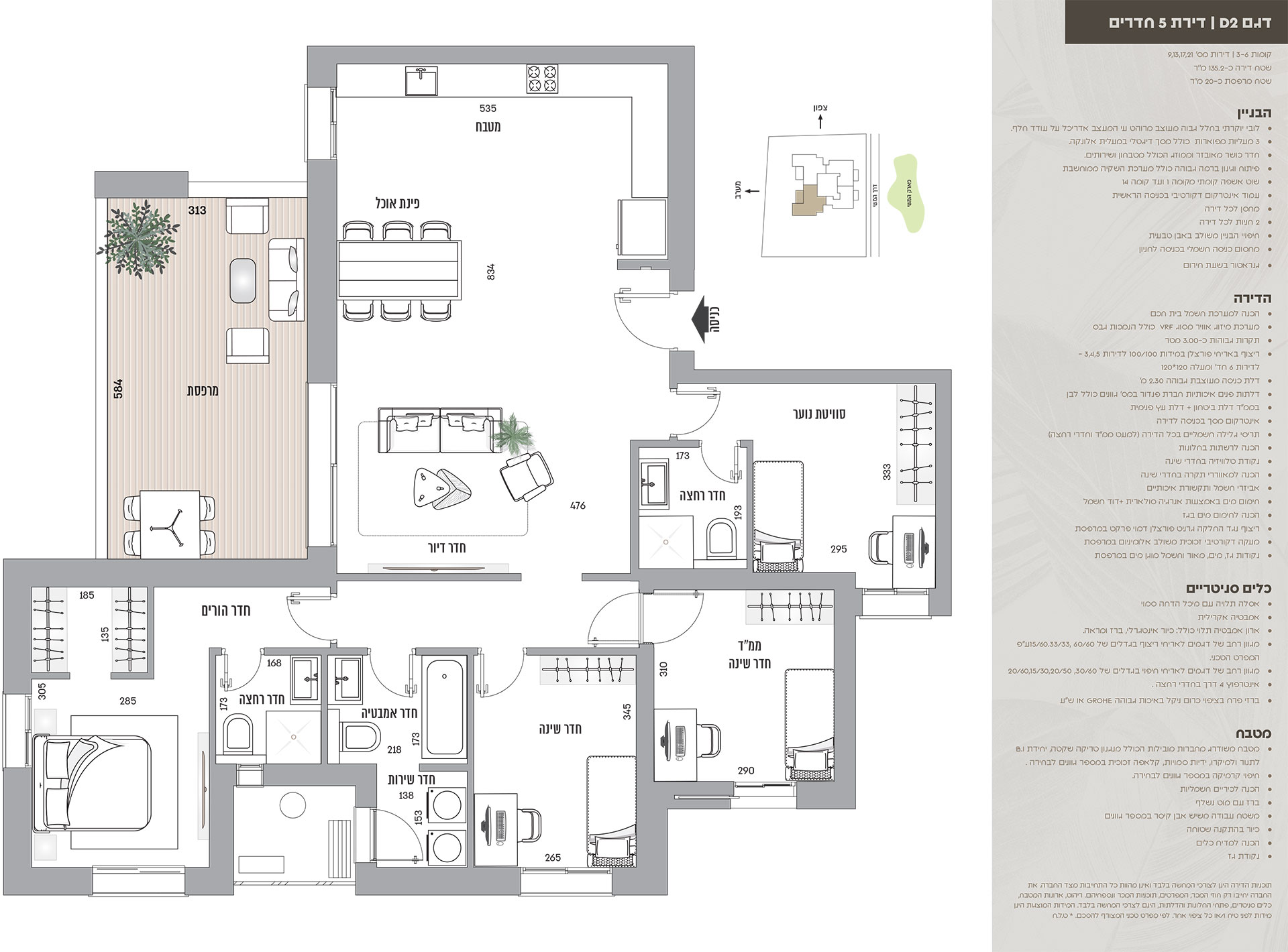
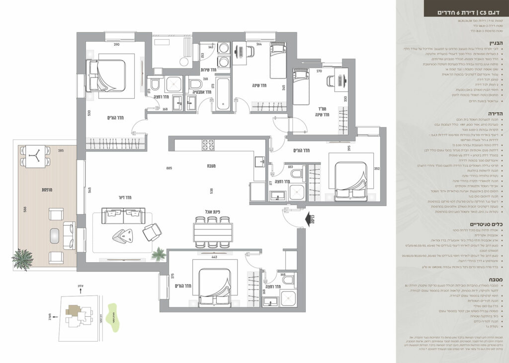
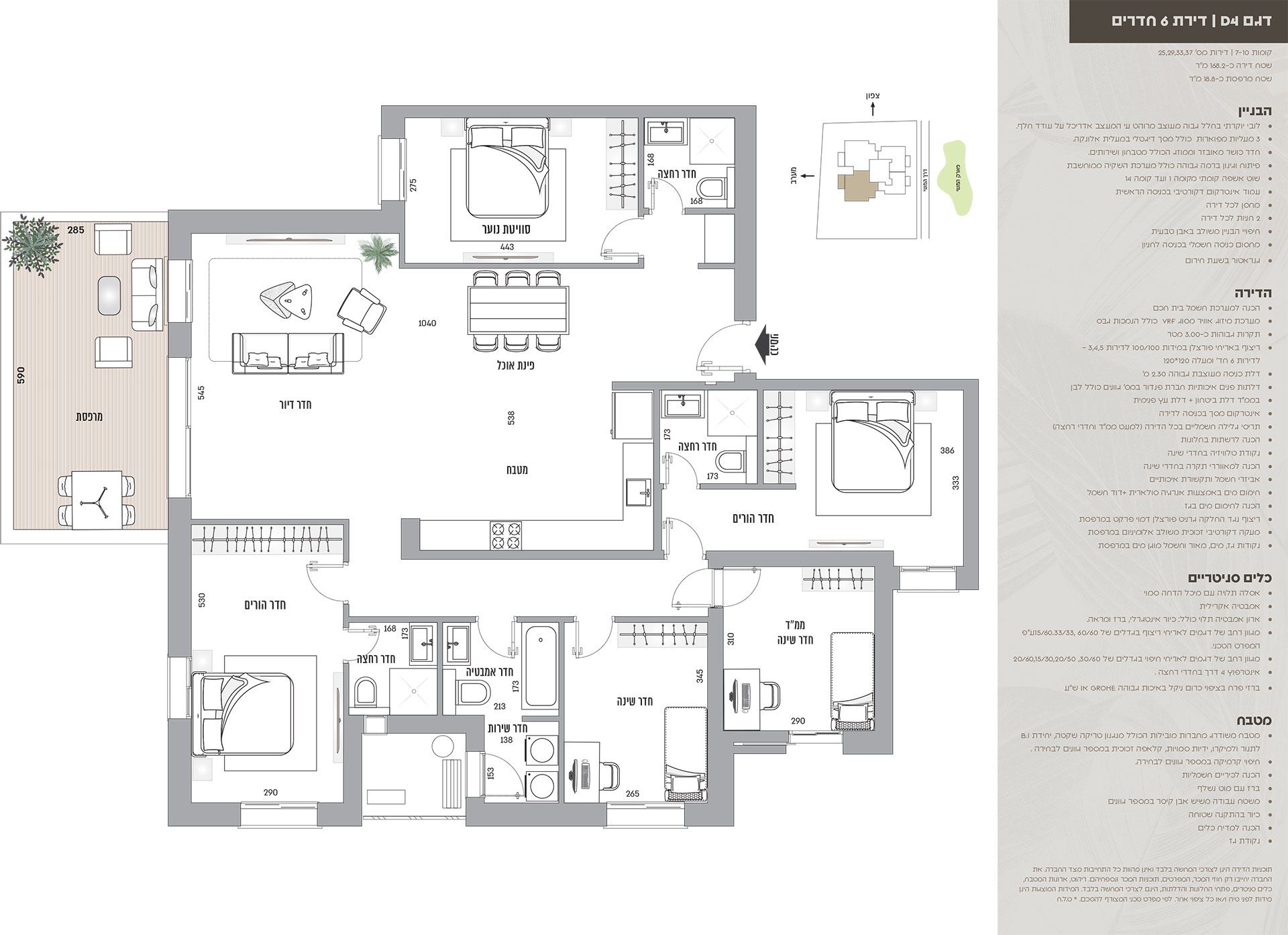
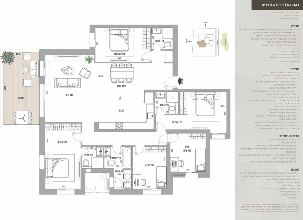
תכניות דירה

קיים

מיקום

צרו איתנו קשר